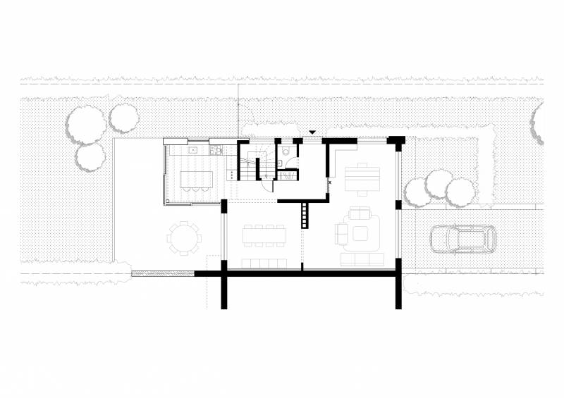
RHDS

  • Program | Single family house

  • Intervention | Extension

  • Location | Rhode-Saint-Genèse

  • Client | Private

  • Area | 40m2

  • Dates | 2018-2020

  • Status | Ongoing

  • Featured graphics | Stephane De Groef

  • Pictures | ***

1
 / 
1
close