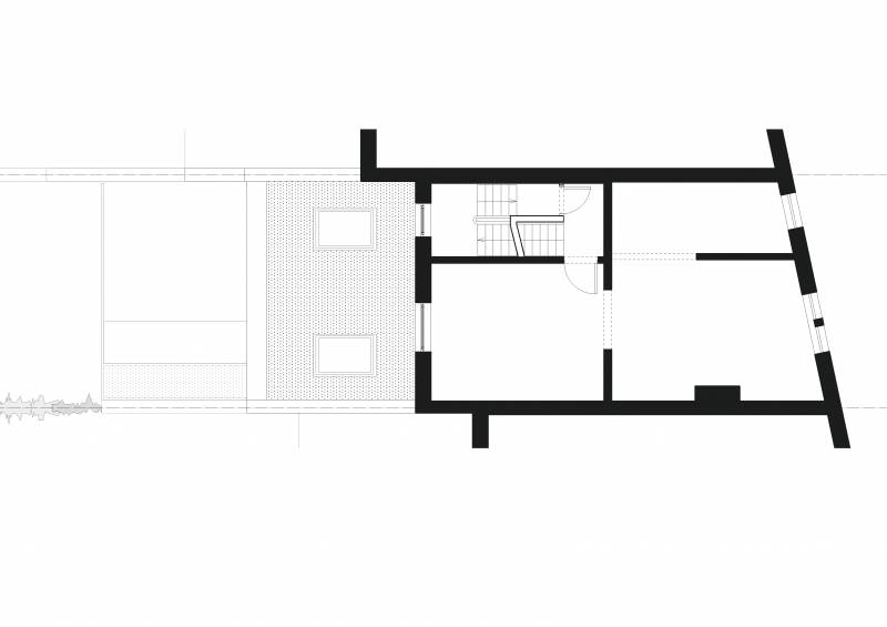
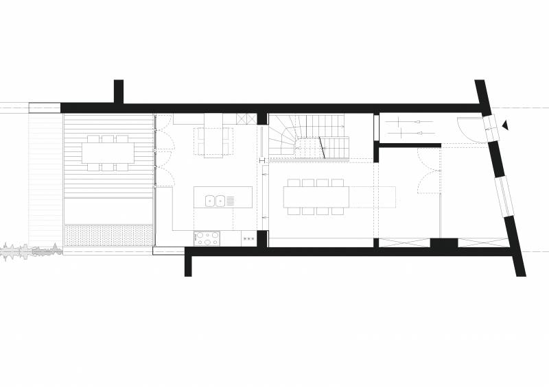
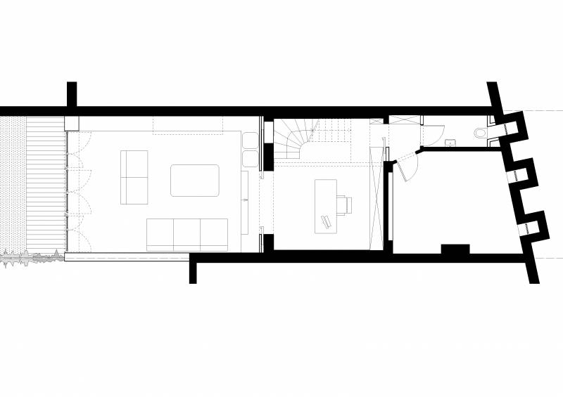
RHAM

  • Program | Single family house

  • Intervention | Transformation

  • Location | Uccle

  • Client | Private

  • Area | 125m2

  • Dates | 2016-2019

  • Status | Completed

  • Featured graphics | Stephane De Groef

  • Pictures | Matthias Mazelier

1
 / 
1
close