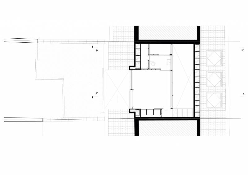
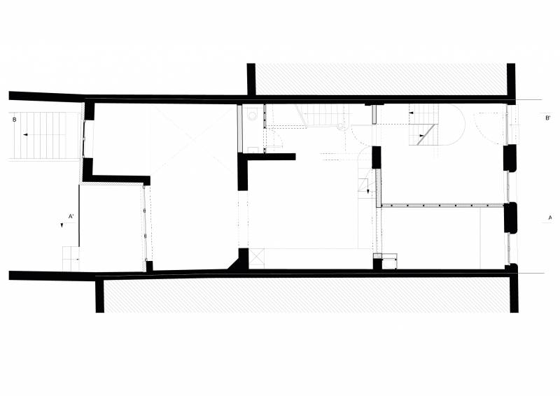
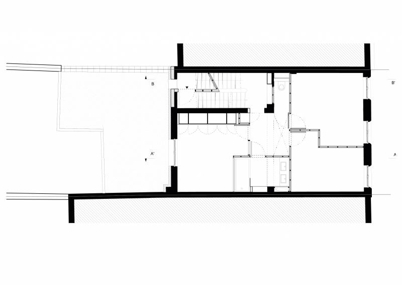
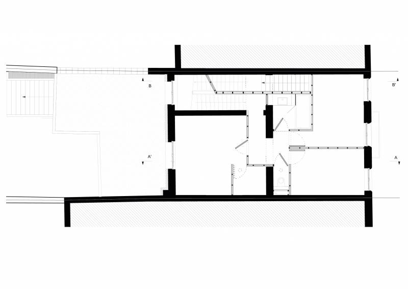
KACU

  • Program | Housing

  • Intervention | Transformation

  • Location | Schaerbeek

  • Client | Private

  • Area | 340m2

  • Dates | 2020-2024

  • Status | Completed

  • Featured graphics | Stephane De Groef

  • Pictures | Nicolas da Silva Lucas

1
 / 
1
close