BERK

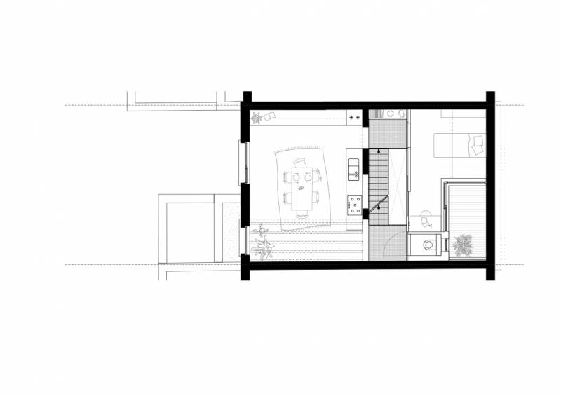
  • Program | Appartment

  • Intervention | Transformation

  • Location | Forest

  • Client | Private

  • Area | 140m2

  • Dates | 2020-2022

  • Status | Completed

  • Featured graphics | Stephane De Groef & Charlotte Merveille

  • Pictures | Nicolas da Silva Lucas

1
 / 
1
close